We have the people, the purpose, the property, 
and the funds to bring our church home to life.
We are thrilled about our Groundbreaking Ceremony 
on Sunday, May 18th, 2025!

OUR DREAM

We have exceeded our goal of raising $1.5 million for our future church facility, which is breaking ground on Sunday, May 18th, 2025! This milestone is a testament to God’s faithfulness and the generosity of His people.

In faith, our congregation has also committed to adding 3,250 square feet of unfinished space to the facility. This addition will cost approximately $245,000 and represents an investment in the church’s ability to grow and serve in new ways. Over time, we plan to transform this area into offices, youth space, expanded children’s ministry, and event gathering space. Any additional funds raised throughout this construction project will be applied toward both finishing the expanded space and reducing our overall mortgage!

WILL YOU JOIN US IN FUNDING THIS DREAM?

PLANS

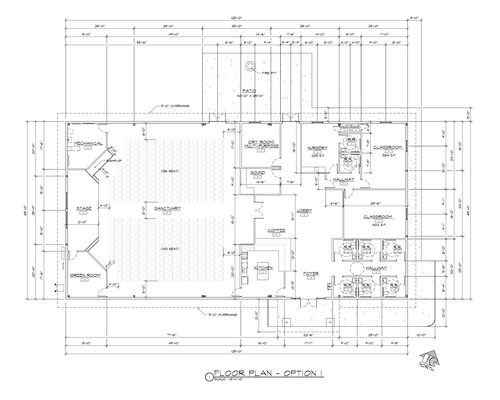
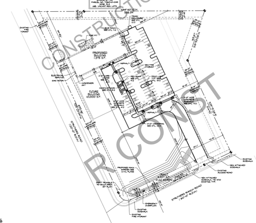
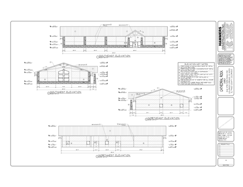
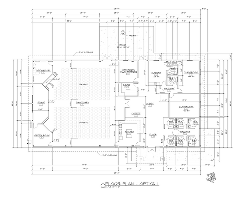
Click on an image to zoom in.
Exterior Plan
Lot Development Plan
Interior Plan

FAQS

STEWARDSHIP

What date do we need to raise the money by?
We would like to raise $245,000 by March 2, 2025 to be able to secure a loan and break ground in the Spring of 2025.

We are referring to all gifts given by March 2, 2025 as "Groundbreaking Gifts".
Can I give over a longer period?
Yes! All continued Growing Faith giving will help fund the expansion, reduce our mortgage incurred, and benefit Cathedral Rock Church’s resources available for God’s kingdom use.

We are referring to all gifts received after March 2, 2025 as "Grand Opening Gifts".

FUTURE COSTS

What does a mortgage of $1,200,000 cost each year?
$1,200,000 at 7.5% amortized over 25 years is roughly $106,500 annually or $8,875 per month.
Pray with us that mortgage rates drop in the next several months!
What are the anticipated utility costs on a building size of 8,000+ square feet?
Utility costs run approximately $1.00 to $1.50 per square foot.
Using the $1.50 ratio, we are anticipating costs of about $12,000 annually or $1,000 per month.
How much would liability insurance be for a new facility?
A high-end conservative estimate for facility liability insurance is about $15,000 annually.
Does our total project cost of $2,775,000 include money for furniture, fixtures, and equipment (FF&E)?
No, this amount anticipates that we will use the current equipment and furniture that we have and replace these things over time rather than all at once.

CURRENT BUDGET

Can our budget afford a new, permanent facility?
Our current budget allows for $86,500 toward facility costs and insurance.
The new facility costs outlined above would be approximately $133,500 annually–which exceeds our budgeted amount by $47,000.

We currently have over $300,000 in our general fund savings. Anticipating minimal changes to our current budget, our general savings could cover the increases in costs for over six years. 

We also recognize that as we move into a permanent home it is normal for the church size and contributions to increase, which could be used to cover these increases.